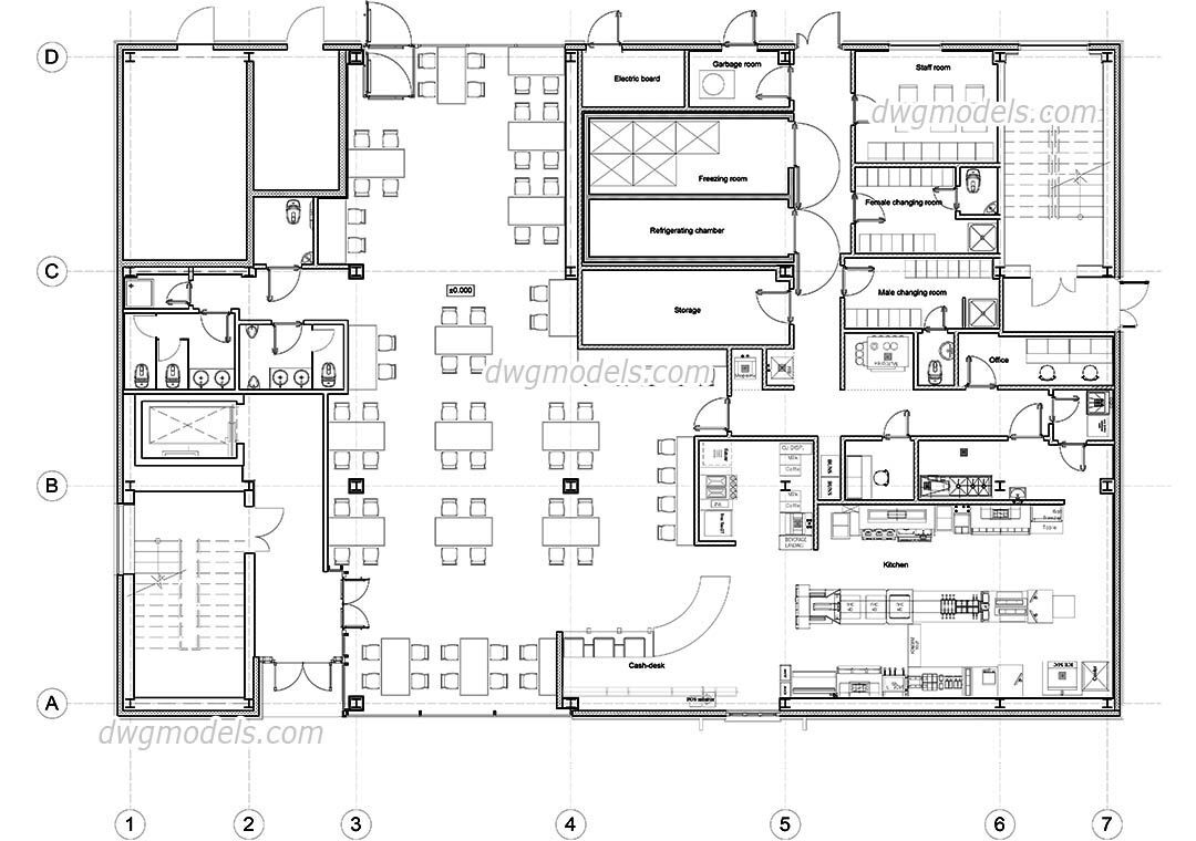
Fast food restaurant floor plan